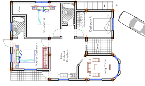
Ce projet consistait à concevoir une maison familiale de deux niveaux, pensée pour permettre au client de louer ultérieurement le rez-de-chaussée tout en occupant l'étage.
Malgré de nombreuses contraintes, ce défi de conception exigeait une réflexion approfondie. J'ai opté pour une volumétrie en triangle irrégulier avec une forme en biseau : un design audacieux qui allie esthétique, simplicité et respect des normes.
Pour garantir l'intimité des deux futurs foyers, un escalier extérieur a été intégré. Satisfait du résultat, le client m'a confié la surveillance complète du chantier afin d'assurer une exécution fidèle au projet initial.







