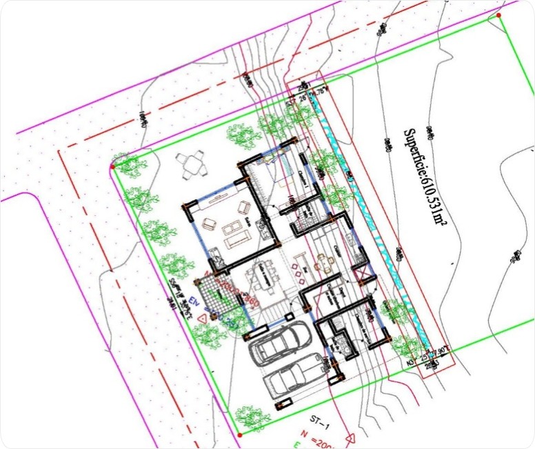
Ce projet est né d'une volonté manifeste : façonner un refuge en harmonie avec le rythme familial. Plus qu'un simple objet Art-Chitectural, on a conçu cette résidence comme un parcours fluide, où chaque espace affirme son identité tout en s'inscrivant dans une unité cohérente.
Ont assuré aussi le suivi de chantier afin de garantir le respect des normes et du design architectural.



