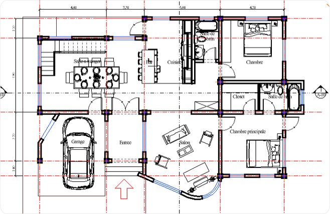
Design & Art-Chitecture * 4 All prend tout le plaisir de concevoir tout type de projet. Ce concept, Niché au cœur d'un paysage verdoyant, cette propriété allie charme authentique et confort moderne raffiné.
On a aussi voulu casser le rythme avec un arc de cercle irrégulier. Chaque fenêtre offre un tableau vivant et apaisant, créant une atmosphère sereine et naturelle.


