Retour aux projets Bâtiment résidentiel

Projet 6

Bâtiment résidentiel

Répondant aux tendances québécoises, ce choix audacieux ne repose pas seulement sur un style visuel moderne ou un jeu de volumes, mais sur un équilibre entre esthétique, performance climatique et durabilité.

Galerie du projet

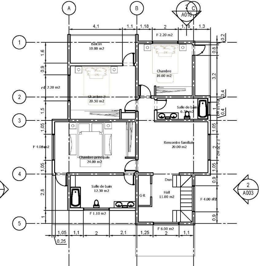
Projet 6 - Image 1
Projet 6 - Image 2
Projet 6 - Image 3