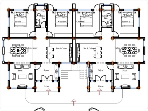
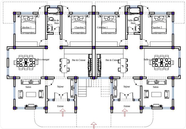
Le client souhaitant exploiter le terrain au maximum, nous avons opté pour une forme parallélépipédique.
Ce choix constitue une solution architecturale ingénieuse pour optimiser les petits terrains urbains tout en offrant un confort naturel à chaque appartement.
Au-delà de l'esthétique moderne, c'est une décision stratégique qui répond à des impératifs économiques, techniques et environnementaux.


